PERIODO
2020 – …
COMMITTENTE
Terme di Riccione S.p.A.
CREDITS
Immagini di ©Federico Galli fotografiadicantiere.it:
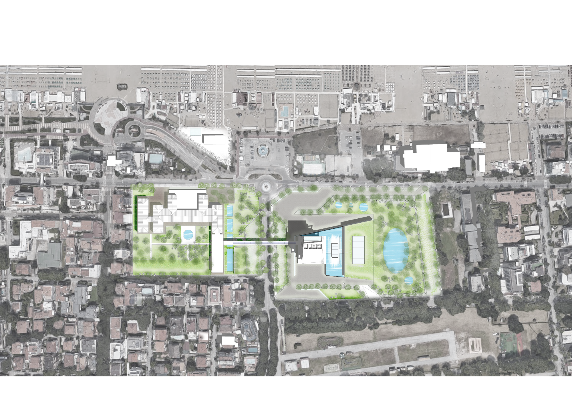
Riccione Terme (RN)
Prestazione: Attività di architettura e ingegneria finalizzate al completamento della procedura di Proposta di Accordo Operativo avviata presso il Comune di Riccione di cui alla Delibera di Indirizzo del Consiglio Comunale n. 39 del 20/01/2018, ai sensi della Legge Regionale n. 24/2017 da eseguirsi per conto di RICCIONE TERME S.p.A. , a cura di POLISTUDIO A.E.S. Società di Ingegneria Srl, nel seguito denominata “Incaricato”.


